山东将在9市布局11座通用机场
其中
青岛即墨华山通用机场
位于青岛蓝谷高新区2023年10月
通过民航青岛监管局验收
日前,山东省政府办公厅印发《山东省航空航天产业发展规划》。山东将优化全省民用机场布局,推动通用航空服务覆盖所有县级行政区、4A级及以上景区、农产品主产区和主要林区。
根据《规划》内容,未来两年,山东将在9市布局11座通用机场。

2025年前拟建设通用机场
(1)济南章丘济凤通用机场
项目选址章丘区曹范街道东山片区,占地面积5280亩,总投资179亿元。
项目区北邻章丘区南外环、潘王路以及大东环连接线,南接济莱高速公路章丘服务区,东临济莱城际铁路章丘南站,西距京沪高速曹范枢纽立交(济南大东环高速终点)2公里,交通便捷畅达,区位优势明显。
(2)青岛即墨华山通用机场
位于青岛蓝谷高新区,2023年10月通过民航青岛监管局验收,标志着该机场将具备运营许可,达到通航条件。
开航之后,机场将力争建成立足青岛、面向山东、辐射全国的通用航空制造、运营基地和应急救援中心。
(3)临沂费县通用机场
临沂费县通用机场项目位于山东省临沂市费县胡阳镇北尹村以东,占地577.7亩。是A1级通用航空机场、临沂市规划建设的三大通用机场之一。
主要为飞机制造企业提供试飞、转场基地,承担除了个人飞行、旅客运输和货物运输以外的飞行任务。
(4)临沭蛟龙通用机场
临沭县交通运输局2023年工作总结指出,稳步推进蛟龙机场建设。目前,一期主体建设已基本完成,并完成相关手续办理。正在加快推进机场监测系统全覆盖、安保的措施和方案、机场整体竣工验收等工作。
2023年10月8日,山东省交通运输厅调度听取了临沭蛟龙通用机场项目进展情况,要求加大工作推进力度,2023年底前实行运营。
(5)泰安仪阳通用机场
据2024年1月30日召开的泰安市交通运输工作会议消息,泰安将加快肥城仪阳通用机场建设。
项目位于山东省泰安市肥城市仪阳街道,潮汶路以东、泰临路以南。截至目前,肥城仪阳通用机场立项材料获山东省发改委核准。
(6)济宁梁山通用机场
机场场址为县城西南部的马营镇。山东省政府已将梁山通用机场列为“十四五”规划重点项目库,完成了机场跑道用地踏勘、土地预审、选址预审等部分前期手续办理工作。
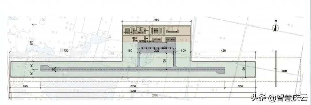
(7)德州庆云通用机场
2023年12月发布选址意见的批前公示,项目位于德州市庆云县尚堂镇北王村东北侧,祥云大道以东,庆无路以南,引新干渠以西,项目符合《山东省国土空间规划(2021-2035年)》。
项目为A1类通用机场,主要用于航空低空飞行服务、短途运输、航空物流配送、空中游览、应急救援、医疗救护、工农作业、森林防火、飞行培训等方面。

庆云通用机场总平面图。图片来源:智慧庆云
(8)临沂平邑通用机场
《加快建设交通强国山东示范区临沂市行动方案(2022-2025年)》指出,建设平邑等通用机场,构建“覆盖市域、辐射鲁南、服务全省”的通用机场群。
根据《山东省民用机场布局规划》,2018至2022年,临沂市布局新增临沭、费县、莒南通用机场;2023至2025年,布局新增沂南、沂水通用机场;2026至 2035年,布局新增临港、郯城、平邑、蒙阴、兰陵、经开区通用机场。
(9)威海荣成通用机场
《2023年全市交通运输工作要点》指出,加快威海新机场、荣成通用机场前期工作,目前项目正在规划中。
(10)烟台长岛通用机场
烟台市人民政府新闻办公室2024年1月24日举行的“立足新起点开创新局面”新闻发布会上透露,加快推进长岛通用机场前期工作,联合栖霞通用机场、蓬莱通用机场等,逐步构建涵盖医疗救护、应急救援、航空旅游、飞行培训等功能的通用航空服务网络,促进通用航空产业发展。
(11)枣庄滕州滨湖通用机场
滕州滨湖通用机场项目已纳入各级中长期规划,目前正在筹备谋划中。
据2021年发布的滕州滨湖通用机场建设工程社会稳定风险公示显示,机场位于滕州市滨湖镇稻屯村西侧,红荷路北侧,性质为对公众开放的A1级通用机场。
上述《规划》提出,支持青岛和济南机场协同打造国际航空枢纽、烟台机场打造区域航空枢纽,积极培育临沂机场区域航空枢纽功能,推动新建枣庄、聊城、淄博、滨州机场,迁建威海、潍坊机场,开展德州、泰安机场前期研究工作。
打造全省覆盖、协同高效、服务优质的通用机场群,鼓励支线运输机场增设通用航空功能设施,支持日照、滨州机场打造全国运输航空与通用航空融合发展示范机场。
根据《山东省“十四五”综合交通运输发展规划》,“十四五”期间,山东将加快通用机场规划建设,打造全省覆盖、协同高效、服务优质的通用机场群,实现通用机场建设发展走在全国前列目标,到2025年,全省通用机场达将到30个。